
Nội thất biệt thự 3 tầng được thiết kế theo phong cách tân cổ điển trong gam màu vàng nâu, diện tích xây dựng là 150 m2. Thiết kế gồm các phòng: khách, bếp và ăn, sinh hoạt chung, thể thao và 4 phòng ngủ. Mời quý vị tham khảo.
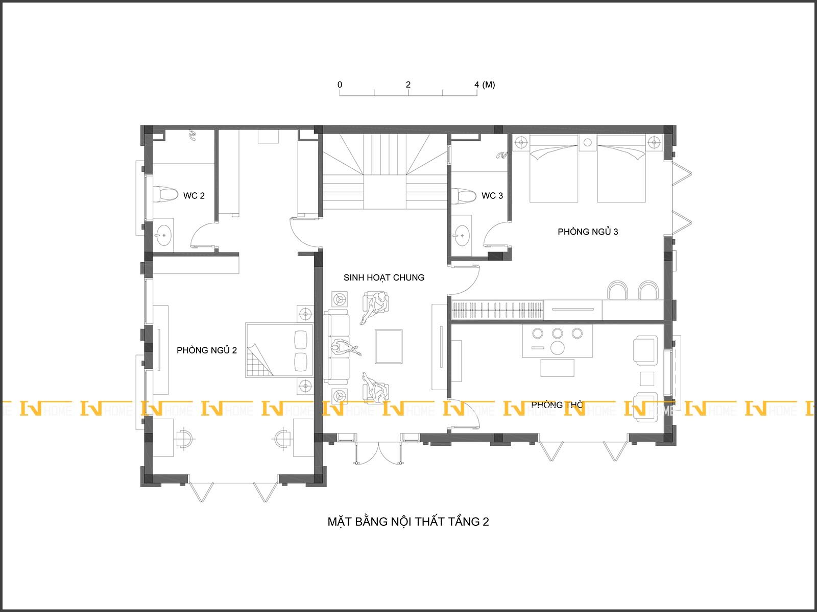
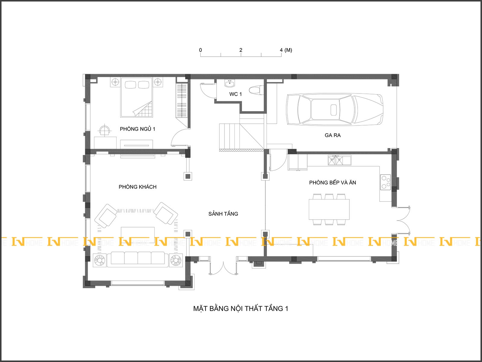
Mặt bằng bố trí nội thất
Mặt bằng nội thất tầng 1: phòng khách, bếp, ăn, gara, ngủ 1.
Mặt bằng nội thất tầng 2: phòng thờ, ngủ 2, 3, sinh hoạt chung.
Mặt bằng nội thất tầng 3: phòng ngủ 4, thể thao, sân giặt phơi.
Phối cảnh thiết kế nội thất
Sảnh tầng 1
Sảnh phòng khách tầng 1, phối cảnh 1.
Sảnh phòng khách tầng 1, phối cảnh 2.
Phòng khách
Phòng khách, phối cảnh 1.
Phòng khách, phối cảnh 2.
Phòng khách, phối cảnh 3.
Phòng bếp và ăn
Phòng bếp và ăn, phối cảnh 1.
Phòng bếp và ăn, phối cảnh 2.
Phòng bếp và ăn, phối cảnh 3.
Phòng sinh hoạt chung
Phòng sinh hoạt chung, phối cảnh 1.
Phòng sinh hoạt chung, phối cảnh 2.
Phòng thể thao
Phòng thể thao, phối cảnh 1.
Phòng thể thao, phối cảnh 2.
Phòng thể thao, phối cảnh 3.
Phòng ngủ 1
Phòng ngủ 1, phối cảnh 1.
Phòng ngủ 1, phối cảnh 2.
Phòng ngủ 1, phối cảnh 3.
Phòng ngủ 2
Phòng ngủ 2, phối cảnh 1.
Phòng ngủ 2, phối cảnh 2.
Phòng ngủ 3
Phòng ngủ 3, phối cảnh 1.
Phòng ngủ 3, phối cảnh 2.
Phòng ngủ 4
Phòng ngủ 4, phối cảnh 1.
Phòng ngủ 4, phối cảnh 2.
Phòng ngủ 4, phối cảnh 3.
Phòng ngủ 4, phối cảnh 4.
Hy vọng thiết kế nội thất biệt thự 3 tầng, diện tích 150 m2 theo phong cách tân cổ điển đã mang đến cho quý vị những tham khảo bổ ích. Hãy gọi chúng tôi để được giải đáp mọi thắc mắc và nhận những tư vấn hoàn toàn miễn phí.


























